Idealista Explorer

← Volver a listado
2.435.000€ 6957 €/m² Deal 27/100 ?Puntuación 0-100 basada en: precio vs comparable, antigüedad del anuncio, planta/ascensor, orientación, cercanía al metro, extras (terraza, garaje, piscina…), tipo de vendedor y señales en la descripción.
Casa o chalet independiente en venta en Niño Jesús
Niño Jesús , Retiro · Ver mapa
Retiro, Madrid
Habitaciones
4
Baños
3
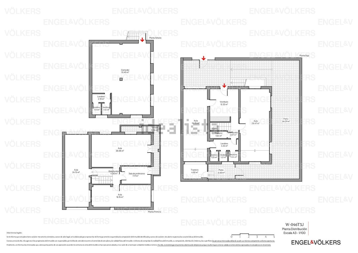
Construidos
350 m²
Año
1926
Estado
Segunda mano/para reformar
Agencia
Profesional
Metro Metro
Conde de Casal · 4 min
price_vs_comparable: +3.6% (6957 vs 7215 €/m² in Niño Jesús, Segunda mano/para reformar) +7.2pts staleness: 101d old +15pts metro: 4 min walk +5pts

Plano (2)

Fotos (40)

Visita virtual (1)

Abrir en nueva pestaña ↗

Vídeo (1)

Ubicación

Características

Descripción