Idealista Explorer

← Volver a listado
1.400.000€ 6392 €/m² 9032 €/m² útil Deal 38/100 ?Puntuación 0-100 basada en: precio vs comparable, antigüedad del anuncio, planta/ascensor, orientación, cercanía al metro, extras (terraza, garaje, piscina…), tipo de vendedor y señales en la descripción.
Piso en venta en CL Juan De Urbieta
Niño Jesús , Retiro · Ver mapa
CL JUAN DE URBIETA
Niño Jesús, Madrid
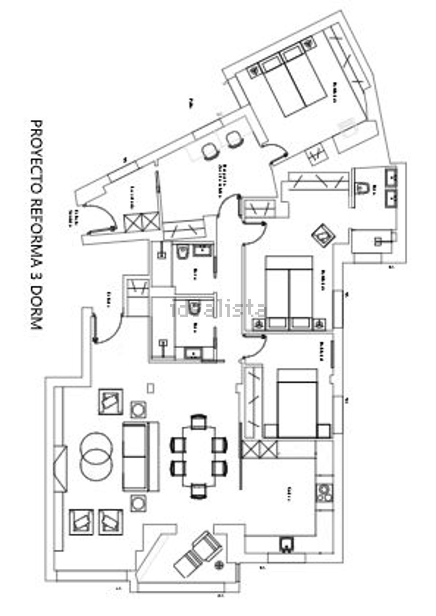
Habitaciones
5
Baños
3
Construidos
219 m²
Útiles
155 m²
Planta
Planta 4ª exterior
Ascensor
Año
1970
Estado
Segunda mano/para reformar
Energía
Consumo:
Agencia
Profesional
Metro Metro
Conde de Casal · 6 min
price_vs_comparable: +11.4% (6393 vs 7215 €/m² in Niño Jesús, Segunda mano/para reformar) +22.8pts floor 4 + elevator +3pts premium_features: garaje incluido +8, trastero +3 +11pts usable_ratio: 71% (155/219m²) -3pts orientation: multi (no sur) +3pts metro: 6 min walk +2pts

Plano (2)

Fotos (21)

Ubicación

Características

Descripción