Idealista Explorer

← Volver a listado
895.000€ 6047 €/m² 7160 €/m² útil Deal 63/100 ?Puntuación 0-100 basada en: precio vs comparable, antigüedad del anuncio, planta/ascensor, orientación, cercanía al metro, extras (terraza, garaje, piscina…), tipo de vendedor y señales en la descripción.
Piso en venta en Calle Sirio, 54
Estrella , Retiro · Ver mapa
Calle Sirio, 54
Estrella, Madrid
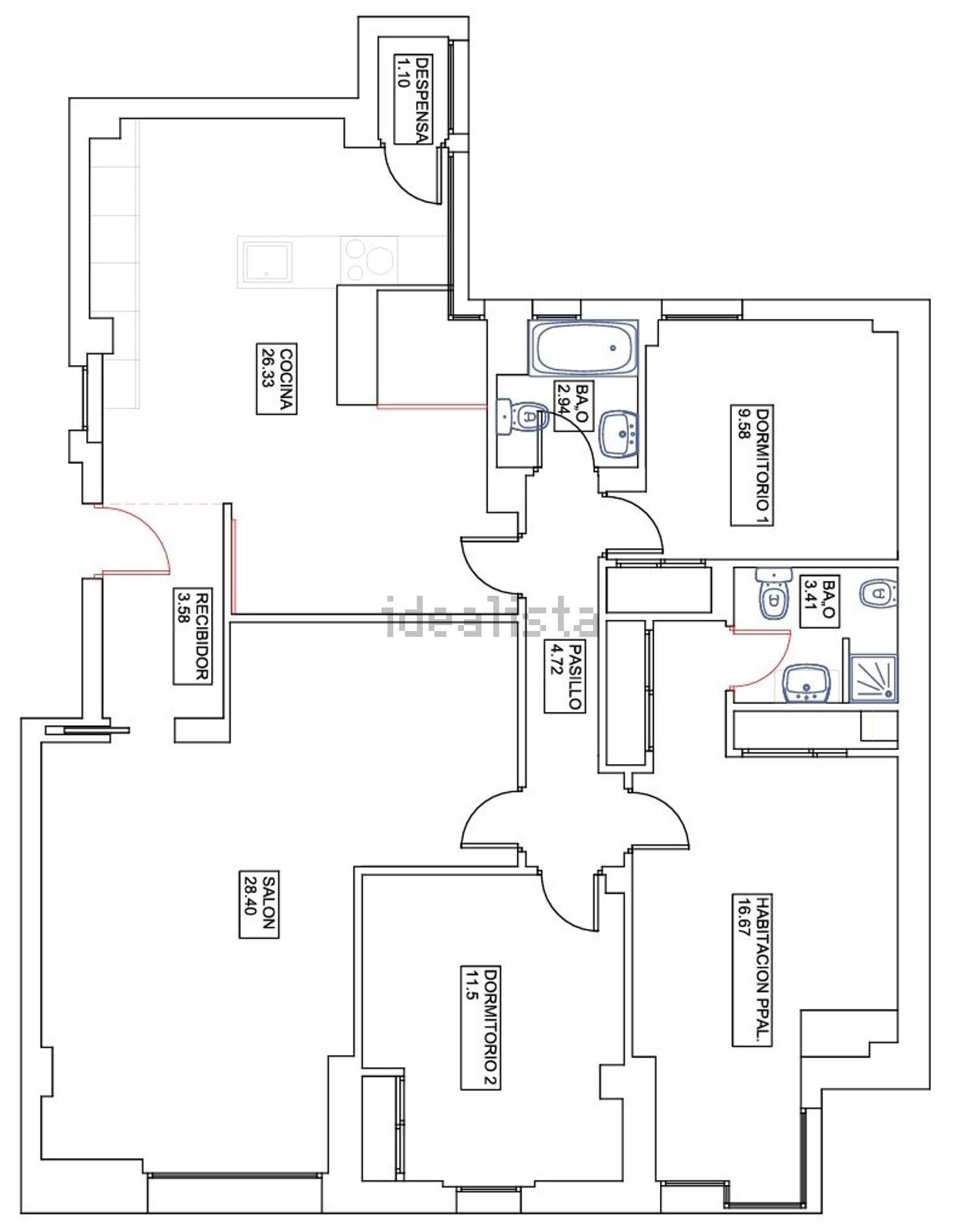
Habitaciones
4
Baños
2
Construidos
148 m²
Útiles
125 m²
Planta
Planta 2ª exterior
Ascensor
Estado
Segunda mano/buen estado
Agencia
Particular
Metro Metro
Estrella · 5 min
price_vs_comparable: +17.7% (6047 vs 7344 €/m² in Estrella, Segunda mano/buen estado) +35.3pts floor 2 + elevator +1pts premium_features: terraza +4 +4pts orientation: multi (no sur) +3pts metro: 5 min walk +5pts particular_seller: no agency ~3% saved +15pts

Plano (1)

Fotos (26)

Ubicación

Características

Descripción